ゾアコーポレーションは都内・横浜エリアを中心に地域密着でリフォームを行っております。

当サイトの情報を転載、複製、改変等は禁止いたします。

水廻りのバリアフリー化と、住まい全体の収納力の充実がテーマ。

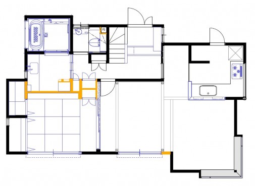
Before

布川邸 既存図面

After

布川邸 改装図面

お客様のニーズ

◆水廻り空間を広く取り、使いやすくしたい。
◆玄関の段差を緩和したい。
◆雑多なものを全て収納できるようにしたい。
◆日常過ごすことが多い空間を、楽しい雰囲気にしたい。

ゾアからの提案

◆洗面室に隣接する8帖の和室を6帖にし、洗面室空間を広くとりました。
 入口も開き戸から引戸になり、間口も拡張されました。
◆トイレに元々あった既存小便器を撤去し、大便器の位置を変える事で、動線がスムーズで使いやすいトイレになりました。
 便器を床から浮いているものにすることで、清掃性もアップ。
◆玄関の段差にステップを設け、段差を緩和し出入りがしやすくなりました。
 壁面には折りたたみベンチを設け、靴の脱ぎ履きもスムーズになりました。
◆和室の2面を全て収納にすることで、奥行様々な物がスッキリ収納できるようになりました。
◆様々な色柄の壁紙やタイルを所々に使用し、カラフルで明るい空間になりました。

施工前の3Dシミュレーション

当サイトの情報を転載、複製、改変等は禁止いたします。

お問い合わせ・お見積もり依頼はこちらまでお気軽にご連絡ください

ショールーム紹介

あざみ野店

あざみ野店

TEL:0120-917-098
神奈川県横浜市青葉区あざみ野2-30 三規庭内1F

町田店

町田店

TEL:0120-042-098
東京都町田市山崎町1343-2

港北店

港北店

TEL:0120-954-473
神奈川県横浜市都筑区茅ヶ崎南3-1-72 1F

東急港北店

東急港北店

TEL:0120-827-845
神奈川県横浜市都筑区茅ヶ崎中央5-1 港北 TOKYU S.C. A館3F