ゾアコーポレーションは都内・横浜エリアを中心に地域密着でリフォームを行っております。

当サイトの情報を転載、複製、改変等は禁止いたします。

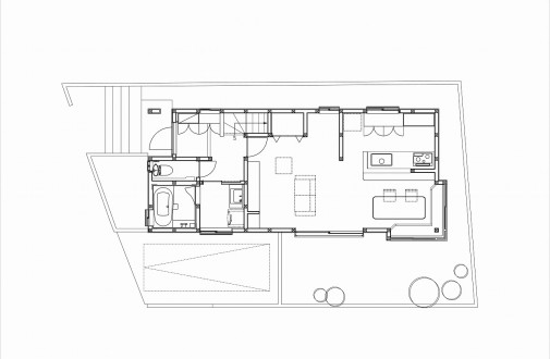
大胆な間取り変更で、理想を叶えた住み替えリフォーム

Before

noimage

After

201601251928_826268

お客様のニーズ

◆住み替えの為の全面リフォーム
◆対面キッチンにしたい
◆浴室を広くしたい
◆大画面のスクリーンで映画を見たい

ゾアからの提案

◆暗く細い廊下を明るい玄関ホールへ
◆水廻り空間はすべてリフォーム前より広々ゆったり
◆水廻りをまるっと移動して、憧れの対面キッチンを実現
◆出窓をダイニングベンチに作り替え、スペースを節約
◆スクリーン・スピーカーを埋込み、シアタールームに変身するリビングに

施工前の3Dシミュレーション

当サイトの情報を転載、複製、改変等は禁止いたします。

お問い合わせ・お見積もり依頼はこちらまでお気軽にご連絡ください

ショールーム紹介

あざみ野店

あざみ野店

TEL:0120-917-098
神奈川県横浜市青葉区あざみ野2-30 三規庭内1F

町田店

町田店

TEL:0120-042-098
東京都町田市山崎町1343-2

港北店

港北店

TEL:0120-954-473
神奈川県横浜市都筑区茅ヶ崎南3-1-72 1F

東急港北店

東急港北店

TEL:0120-827-845
神奈川県横浜市都筑区茅ヶ崎中央5-1 港北 TOKYU S.C. A館3F