ゾアコーポレーションは都内・横浜エリアを中心に地域密着でリフォームを行っております。

当サイトの情報を転載、複製、改変等は禁止いたします。

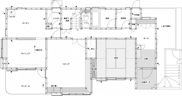
開放的なのに暖かい、将来も見据えた快適な暮らし

Before

before

After

after

お客様のニーズ

◆水廻り・内装・外装を含めた全面リフォーム
◆LDKを明るい空間にしたい
◆洗面室とトイレを広く取りたい
◆食品庫をつくりたい
◆靴やゴルフバックのために収納場所を増やしたい
◆断熱性をUPさせたい

ゾアからの提案

◆壁を無くし、採光を増やすことで、明るく一体感のあるLDK
◆空間構成を見直し、収納を減らすことなく洗面・トイレのスペースアップを実現
◆洗濯機を移設することで、ユーティリティーを食品庫に
◆用途に併せた玄関収納プランで、玄関ホールをスッキリ
◆サッシをペアガラスにして断熱性UP、かつ床暖房と浴室・洗面室の暖房であったかプラン

施工前の3Dシミュレーション

当サイトの情報を転載、複製、改変等は禁止いたします。

お問い合わせ・お見積もり依頼はこちらまでお気軽にご連絡ください

ショールーム紹介

あざみ野店

あざみ野店

TEL:0120-917-098
神奈川県横浜市青葉区あざみ野2-30 三規庭内1F

町田店

町田店

TEL:0120-042-098
東京都町田市山崎町1343-2

港北店

港北店

TEL:0120-954-473
神奈川県横浜市都筑区茅ヶ崎南3-1-72 1F

東急港北店

東急港北店

TEL:0120-827-845
神奈川県横浜市都筑区茅ヶ崎中央5-1 港北 TOKYU S.C. A館3F