ゾアコーポレーションは都内・横浜エリアを中心に地域密着でリフォームを行っております。

当サイトの情報を転載、複製、改変等は禁止いたします。

お子様の成長に合わせた住まいのリフォーム

Before

bf

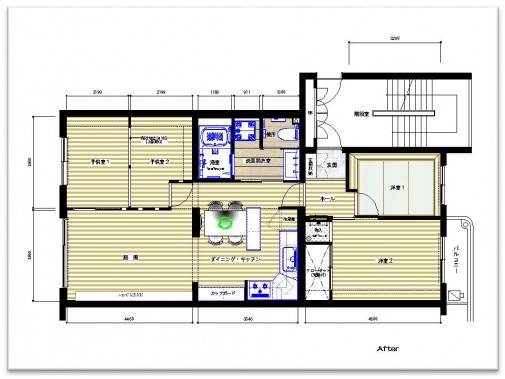
After

af

お客様のニーズ

◆住替えのためのフルリフォーム
◆リビングルームに隣接する子供部屋がほしい
◆ダイニング・キッチンは壊せないコンクリートの壁があるので、うまく利用したい

ゾアからの提案

◆リビングルームに隣接する和室を改修し、子供部屋を2つ隣接。
◆2つの子供部屋はリビングから動きがわかるように、壁面にガラスブロックを採用。
◆壊せない構造壁を利用し、ダイニングテーブルと配膳カウンターを配置。A型仕様のシステムキッチンと調和して、動線に無駄のないレイアウトに。
◆さらに、構造壁を利用し、飾り棚を造作することで、アクセントのある空間に。

当サイトの情報を転載、複製、改変等は禁止いたします。

お問い合わせ・お見積もり依頼はこちらまでお気軽にご連絡ください

ショールーム紹介

あざみ野店

あざみ野店

TEL:0120-917-098
神奈川県横浜市青葉区あざみ野2-30 三規庭内1F

町田店

町田店

TEL:0120-042-098
東京都町田市山崎町1343-2

港北店

港北店

TEL:0120-954-473
神奈川県横浜市都筑区茅ヶ崎南3-1-72 1F

東急港北店

東急港北店

TEL:0120-827-845
神奈川県横浜市都筑区茅ヶ崎中央5-1 港北 TOKYU S.C. A館3F