ゾアコーポレーションは都内・横浜エリアを中心に地域密着でリフォームを行っております。

当サイトの情報を転載、複製、改変等は禁止いたします。

リノベーションで思い描いた上質なデザイン空間を実現

Before

noimage

After

201501111406_169426

お客様のニーズ

◆ 水道管の取替を含む専有部分全ての改装工事で新築のような暮らし
◆ ライフスタイルに合わせた間取り変更・収納計画
◆ キッチンを対面式にして、開放的につかいたい
◆ 防音性能を確保して無垢フローリングを使いたい、引戸にしたい

ゾアからの提案

-ゾア3Dシステム-で改装後のイメージを見ながらのお打合せ
◆室内の給水管・給湯管・排水管を可能な限り全て取替。
◆閉鎖的だったキッチンの壁を取り払って対面式にし、背面は大容量の収納スペースに。
◆ユニバーサルデザインで全室引戸を採用した段差のない快適な暮らし
◆使う人、入れる物を考慮した収納計画

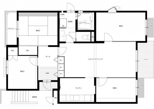
施工前の3Dシミュレーション

当サイトの情報を転載、複製、改変等は禁止いたします。

お問い合わせ・お見積もり依頼はこちらまでお気軽にご連絡ください

ショールーム紹介

あざみ野店

あざみ野店

TEL:0120-917-098
神奈川県横浜市青葉区あざみ野2-30 三規庭内1F

町田店

町田店

TEL:0120-042-098
東京都町田市山崎町1343-2

港北店

港北店

TEL:0120-954-473
神奈川県横浜市都筑区茅ヶ崎南3-1-72 1F

東急港北店

東急港北店

TEL:0120-827-845
神奈川県横浜市都筑区茅ヶ崎中央5-1 港北 TOKYU S.C. A館3F